Satılık

Royal Sun

İletişim
  • (0)
  • 93 Views
  • İskele
Tanım

Ülkenin en hızlı büyüyen kasabalarından birinde yer alan, mükemmel bir kaçış arayan yatırımcılar ve tatilciler için inanılmaz bir keşif.

İskele , şehrin dört bir yanına dağılmış zengin kültürel yapıları sayesinde hem turistler hem de yerel halk için popüler bir cazibe merkezidir. Long Beach muhteşem kumlarında dinlenerek, lezzetli yerel lezzetleri deneyerek veya bereketli bölgeyi keşfederek ve her mevsim güzel olan muhteşem doğal manzaraya tanıklık ederek hayatınızın geri kalanını geçirebilirsiniz.

Bu yepyeni komplekslerdeki alanlar hızla tükeniyor, bu yüzden yerinizi hemen ayırtın ve canlı, sakin bir kültürü benimseyin.

4525b2eb-0917-4b95-b5ce-c38709e785c4.webp
Genel Bakış
Proje Kimliği: 76
Tip: DairePenthouse
Bloklar: 110
Daireler: 302
Katlar: 3
Bitiş Tarihi: Mar 01, 2026
Satışa Açılış Tarihi: Jan 01, 2021
Video
Olanaklar ve özellikler
  • Bahçe & Peyzaj
  • Evcil Hayvan Dostu
  • Fitness
  • Güvenlik
  • Havuz
  • Klima
  • Kuru Temizleme
  • Otopark
  • Spa & Masaj
  • Wifi
Yakında ne var?

Mülkünüzün yerini tam olarak belirlemek ve çevredeki kolaylıkları belirlemek için yakındaki olanakları keşfedin, yaşam ortamına ve mülkün rahatlığına kapsamlı bir genel bakış sağlayın.

  • Hastane: 10 DK
  • Market: 3 DK
  • Eğlence: 1 DK
  • Eczane: 2 DK
  • Havalimanı: 40 DK
  • Plaj: 5 DK
  • Restoranlar: 1 DK
  • Casino: 5 DK
Konum
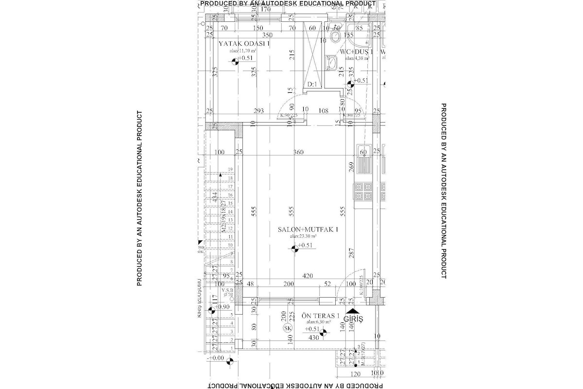
Floor plans
  • Modern tasarım, kullanışlı planlar, geniş yaşam alanları ve yüksek konfor standartlarında. Kıbrıs yatırımınızı birlikte planlayalım.
Paylaşmak:

Write a Review

Bir değerlendirme yazın
0 Reviews
0 out of 5
Temas etmek

Veya WhatsApp üzerinden anında yanıt alın

Bu sitedeki deneyiminiz çerezlere izin vererek iyileştirilecektir.